
Komplikovaná architektonická i urbanistická situace je výzvou – víc problémů znamená větší potenciál. Správné řešení pro objekty proto musí znamenat také významnou pomoc městu: uspořádat vztahy v území a podpořit jeho prostupnost, čitelnost i charaktery.
Název
Spolkový dům Humpolec
Číslo
118
Tým
David Neuhäusl, Matěj Hunal, Valerie Heyworth, Barbora Novotná, Tereza Klímová, Ester Maria Dvořáková, Eduard Kušnír
Místo
Humpolec
Otevřená soutěž
2024
Umístění
3. místo
Vizualizace
Lukáš Scholz
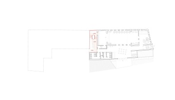
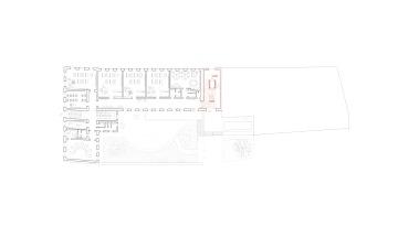
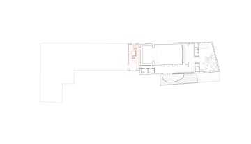
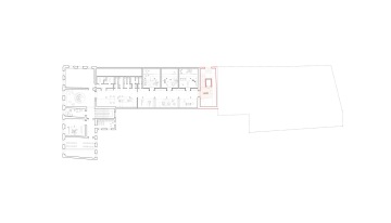
Klíčové místo projektu se nachází tam, kde historicky byl volný prostor mezi domy. Místo nepůvodní dostavby navrhujeme komunikační jádro, které zajišťuje plnohodnotné propojení všech výškových úrovní. Nová vrstva se propisuje do uliční fronty, kde vytváří důležitý znak. Oddělení stávajících domů podporuje jejich identitu a důstojnost. Navržená dostavba se přizpůsobuje terénu a stávajícím objektům. Nekonkuruje hlavním průčelím, ale smysluplně je doplňuje.



Nemonumentální tvář přístavby má střídmý, svébytný výraz. Elegantní vlnitý plech v sobě spojuje identitu vnitrobloku i současný architektonický jazyk.






Nedílnou součástí projektu jsou navazující veřejná prostranství. Doplňujeme jejich síť podél nové severojižní osy, která prochází skrz dům.



Podporujeme pěší dopravu, kultivujeme stávající propojení a navrhujeme nová. Architektura i urbanismus respektují přirozené toky pohybu.





