
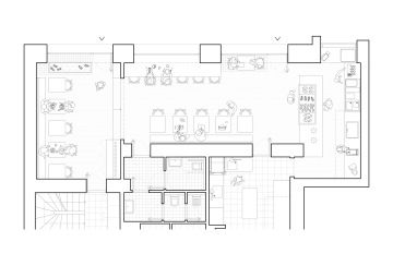
Velkorysému prostoru restaurace dominuje rak z Raka. Spolu s krabem. Zářivě oranžové prvky vystupují ze střídmě šedých materiálů stejně jako mořské plody na menu ze standardu pražské gastroscény. Návrh pracuje s výraznými proporcemi prostoru bývalé prádelny. Odstranění nízkých podhledů a propojení všech místností podél fasády přineslo světlo a kontakt s exteriérem, který posiluje výsuvný výkladec. Výsledkem je otevřený, transparentní
a vzdušný prostor.
Název
Rakin Bistro
Číslo
096
Tým
David Neuhäusl, Matěj Hunal, Tereza Šírerová, Valerie Heyworth
Adresa
Jugoslávských partyzánů 7, Praha 6
Projekt
2022
Realizace
2025
Fotografie
Radek Úlehla





Zářivě oranžové prvky vystupují ze střídmě šedých materiálů stejně jako mořské plody na menu ze standardu pražské gastroscény.





