
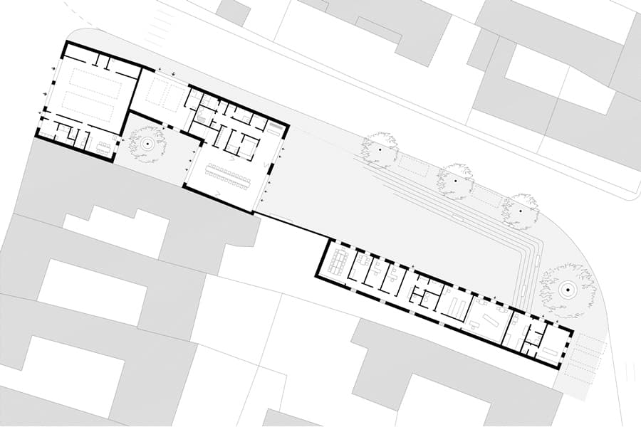
Dvojice nezávislých budov vymezuje prostor návsi. Rozdílný charakter obou staveb odpovídá jejich významu, funkcím a návaznosti na urbanistickou strukturu.
Název
Obecní dům Moravské Bránice
Číslo
017
Tým
David Neuhäusl, Matěj Hunal
Místo
Moravské Bránice
Studie
2017
Vizualizace
Adam Horn
Budova obecního úřadu vyjadřuje své postavení ustoupením a střídmostí. Jednoduchá hybridní hmota není objektem sama pro sebe – přizpůsobuje se pozemku, otevírá se do návsi, vytváří pozadí pro každodenní život a podtrhuje okolní střešní krajinu. Tvoří jasnou hranici nejzásadnějšího obecního prostoru jako stěna, v níž také volně přechází,
a kromě úřadu se v ní nachází knihovna, komerční prostor a obecní byt.
Budova s obecním sálem, hasičskou zbrojnicí a zázemím údržby obce přejímá formu místních stavení, ovšem v současném detailu. Potvrzuje stávající strukturu, vymezuje nároží s ulicí a vytváří dominantu věže s hodinami. Řešení obecního sálu a jeho zázemí umožňuje maximální variabilitu všech souvisejících provozů a především propojení dvora a návsi do jednotného celku. Utilitární provozy jsou orientovány ke komunikacím.


Veřejný prostor i obě budovy jsou navrženy tak, aby bez významných událostí a většího množství lidí nepůsobily nepatřičně, ale v jakémkoli běžném okamžiku přirozeně sloužily pro vyřízení jakýchkoli záležitostí, setkání anebo jen zběžné minutí.

