
Pravá udržitelnost znamená nerozlučné propojení etiky a estetiky. Malé město není maloměsto. Nepohodlné dědictví se může stát rodinným stříbrem. To jsou tři základní východiska našeho návrhu.
Název
Kulturní dům Ústí nad Orlicí
Číslo
120
Tým
David Neuhäusl, Matěj Hunal, Barbora Novotná, Valerie Heyworth, Tereza Klímová
Adresa
Ústí nad Orlicí
Soutěž
2024
Umístění
3. místo
Vizualizace
Lukáš Scholz
Racionalizujeme vztah k architektuře z období socialismu. Od povinné adorace přes automatické zavržení je potřeba dojít k uvážlivému zhodnocení a zachování smysluplných hodnot bez emocí. Promyšlené prolnutí původní a nové vrstvy vytváří inkluzivní a demokratickou instituci pro 21. století – městské společenské centrum.
Navrhujeme: kulturně, environmentálně i ekonomicky citlivou architekturu, která respektuje hodnoty minulosti a zároveň hledí do budoucnosti; multifunkční a nízkoprahovou instituci s celodenním provozem; společenské kulturní centrum a přirozené místo setkávání.
Řešíme: inovativní přístupy cirkulárního hospodářství; aktuální témata klimatické krize a dědictví architektury socialismu; adekvátní architektonický jazyk; podporu místních aktivit a komunitního života; identitu a současný význam kulturního domu jako typu; zapojení veřejnosti do procesu a celkovou otevřenost projektu.
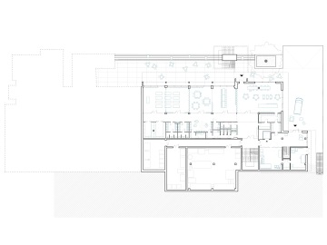
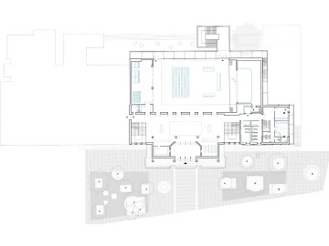
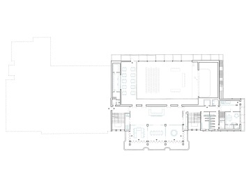
Architektonický koncept spočívá v respektování kvalit hlavní fasády kulturního domu a jejich citlivé doplnění současnou vrstvou. Považujeme za podstatné, aby nebyly zpřetrhány všechny mentální vazby a vzpomínky jejích uživatelů. Klíčovým zásahem je sjednocení celého objektu multifunkční předsazenou fasádou, která přináší nové kvality.


Uchováváme paměť místa a vycházíme z původní estetiky, kterou aktualizujeme a doplňujeme současným výrazem, aby společně vytvořily nadčasový celek.

V různé formě zachováváme maximum smysluplných prvků. Původní kamennou dlažbu foyer transformujeme do nové dlažby. Některé prvky zůstávají repasované ke svému původnímu účelu a na původním místě, jiné jsou transformovány pro jinou funkci na jiném místě.




Architektonický koncept spočívá v respektování kvalit hlavní fasády kulturního domu a jejich citlivé doplnění současnou vrstvou. Považujeme za podstatné, aby nebyly zpřetrhány všechny mentální vazby a vzpomínky jejích uživatelů.

Klíčovým zásahem je sjednocení celého objektu multifunkční předsazenou fasádou, která přináší nové kvality – uživatelskou (balkony, ochozy, schodiště), energetickou (exteriérové stínění) i environmentální (zelená fasáda).

Z hlediska dispozičního řešení podporujeme silné prostorové stránky domu a očišťujeme jednotlivá místa na jejich podstatu. Dbáme na kvalitní propojení, jednoznačnost a snadnou orientaci.



Aktivace občanů a jejich participace v nově zpřístupněných prostorech by měla vést k tvorbě nového programu salónků a klubovny a navázat s ním i na stávající a zažité aktivity v domě.



Lidé si vytvoří vlastní fungování domu a s tím i místo, kde chtějí trávit čas všichni napříč generacemi.
