
V malebném údolí Všenorského potoka stojí nad bývalou cihelnou malá chata z šedesátých let. Záměrem je vytvoření příjemného místa k odpočinku, které odpovídá současným nárokům a umožní i delší pobyt nejen v letním období.
Název
Chata Černolice
Číslo
126
Tým
David Neuhäusl, Matěj Hunal, Valerie Heyworth, Petr Škoula
Adresa
Černolice
Studie
2025
Stávající objekt zaujme výraznými okny a barevností, od svého vzniku v šedesátých letech však neprošel zásadní úpravou. I přes nesporné vizuální kvality tak jeho dispozice, světlá výška, absence schodiště a oken či skladby konstrukcí neumožňují adekvátně komfortní užívání. Navržená rekonstrukce proto doplňuje půdorys původní chaty na obdélník a zároveň zvětšuje celkový objem stavby posunem říms a hřebene. Cílem je zachovat maximum z atmosféry místa a naplno využít jeho kvalit v návaznosti na interiér.
Projekt si hraje s analogiemi prvků charakteristických pro původní chatu. Dochází k jejich redukci a zároveň zesílení. Klíčovými elementy, které návrh transformuje, jsou pásová okna, zelená barva, výrazný sokl a klasická silueta. Výsledkem je kompaktní, jednoduchá a pokorná stavba. Přesvědčivé kompozice s velkorysými okny potvrzují aktuální dobu vzniku, ale nepopírají identitu chatičky. Analogie roztomilosti.
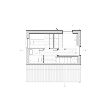
Objekt je mírně zapuštěn do terénu a využívá šikmých střech, aby lépe navázal na okolí, a přitom nabídl dostatek vnitřního prostoru. Vstup do objektu je natočen k příjezdové cestě, což vytváří závětří s úložným prostorem. Nejnižší část stavby směrem k cestě kromě vstupních prostor obsahuje technické zázemí a toaletu. Na zádveří navazuje hlavní obytná místnost v zapuštěné části stavby. Nábytek je umístěn po jejích okrajích s výjimkou multifunkčního ostrůvku v kuchyňské části. Schodiště integrované do truhlářského prvku pohodlně propojuje obytnou část s částí klidovou v podkroví, kde se nachází hlavní ložnice, pokoj a koupelna.
Jedním z důležitých témat návrhu je propojení s okolím. Díky zapuštění objektu do mírného svahu vzniká na jeho západní straně charakteristický moment, kdy pracovní deska v kuchyni navazuje na výšku terénu. Rohové okno poskytuje unikátní perspektivu, kdy člověk může zblízka pozorovat přírodu či bylinkovou zahrádku před oknem.



Přesvědčivé kompozice s velkorysými okny potvrzují aktuální dobu vzniku, ale nepopírají identitu chatičky. Analogie roztomilosti.


Schodiště integrované do truhlářského prvku pohodlně propojuje obytnou část s částí klidovou v podkroví, kde se nachází hlavní ložnice, pokoj a koupelna.


