
Bývalá továrna Organa z druhé poloviny 19. století je důležitým místotvorným prvkem. Průčelí objektu pomáhá definovat charakter veřejných prostranství u rybníku Lorčák, kde se prolínají historické i moderní urbanistické struktury. Záměrem je regenerace tohoto industriálního brownfieldu a jeho konverze na bydlení.
Název
Bytové domy Kutná Hora
Číslo
123
Tým
David Neuhäusl, Matěj Hunal, Valerie Heyworth, Tereza Klímová, Barbora Novotná, Eduard Kušnír
Adresa
ulice Sportovců, Kutná Hora
Studie
2024
Vizualizace
ZAN studio
Hlavním principem návrhu je vrstvení. Klíčovou kvalitu tvoří půdorysná stopa spolu s hmotovou kompozicí, které uchovávají původní urbanistickou strukturu a ducha místa. Proto doslova i přeneseně stavíme na původní struktuře. Cílem je zachovat maximum smysluplných hodnot i fyzických konstrukcí. Nové a staré se propojuje do jednoho celku, který ovšem umožňuje čtení obou odlišných vrstev.
Zásadním aspektem návrhu je rozmanitost – to se týká zaprvé typologie a charakteru bydlení, které zahrnuje byty v uvozovkách klasické, ale i pavlačové, mezonetové, s přímým vstupem či s předzahrádkou. Zadruhé jde o navazující poloveřejná prostranství, sdílené polosoukromé prostory a soukromé exteriérové plochy.
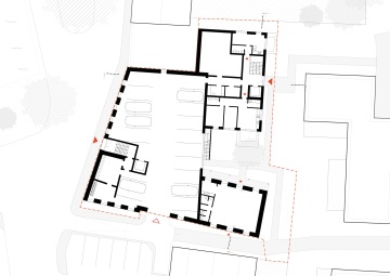
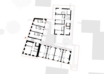
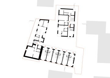
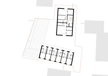
Charakteristickou nárožní hmotu zachováváme v původním tvaru, kompozici i detailech. U navazujících podélných hmot dochází k nástavbám. Jednopodlažní přístavby ve vnitrobloku jsou odstraněny a na jejich místě je navržena novostavba bytového domu. Projekt principiálně vychází z původní zastavěné plochy a v jádru pozemku tak zůstává zachován charakteristický dvůr. Všechny objekty jsou v přízemí propojeny technickým, respektive parkovacím podlažím, na jehož střeše vzniká zvýšená úroveň dvora.
Nové konstrukce jsou od původních jasně odlišeny barevností a hrubostí omítky. Všechny vrstvy naopak sjednocují dřevěné rámy oken spolu s kovovými střechami, svody a detaily. Nová zastřešení záměrně navazují na původní zástavbu – svým sklonem a celkovým řešením ovšem přiznávají současnost svého vzniku. Okenní otvory respektují pravidelný industriální rastr původních konstrukcí, zatímco v nástavbách a novostavbách se jejich kompozice více uvolňuje.


Srdce bytového souboru tvoří dvůr ve dvou úrovních, který slouží pro komunikaci v obou významech a zároveň navazuje na prostory kolem sousedících bytových domů.

Nové a staré se propojuje do jednoho celku, který ovšem umožňuje čtení obou odlišných vrstev.

Klíčovou kvalitu tvoří půdorysná stopa spolu s hmotovou kompozicí, které uchovávají původní urbanistickou strukturu a ducha místa. Proto doslova i přeneseně stavíme na původní struktuře.




Všechny objekty jsou v přízemí propojeny technickým, respektive parkovacím podlažím, na jehož střeše vzniká zvýšená úroveň dvora.

